
At some point in my youth, I wanted to be an architect and/or a home designer. Naturally, I wanted to see actual floor plans of houses on Grosvenor Square and other fashionable districts. One of my favorites was of Derby House, renovated by Robert Adam- famous Georgian architect- at the direction of the 12th Earl Lord Stanley. I didn’t do any research on the Earl while I wrote my story, but I recalled there being only one room listed as a bedchamber, and I thought that was rather interesting for the era! Upon further, recent research it seems there was a twin bed made for his lordship’s dressing room (which reminds me of the arrangements for Downton Abbey). The other week I decided to look him up, and I expected to read about a happily married couple. Instead, I found one of Society’s scandals!
Born in 1753, Elizabeth Hamilton was the eldest daughter of the 6th Duke of Hamilton. When she came out, she was considered quite the catch, but it was Edward Smith-Stanley, heir to the Earl of Derby, who won her hand. After a publicized and fervent courtship in which Derby hosted a ball in Lady Elizabeth’s honor twice, they married in 1774. They settled in his recently remodeled town house, and her husband inherited the earldom in 1776. A son was born in 1775 and daughters in 1776 and 1778. Lady Derby became a leader in Society, on the scales of Georgiana, Duchess of Devonshire.

Historians disagree over if Lady Derby’s loss of standing was because she left her husband or because the affair was not conducted more privately. While many ladies of the huate ton had affairs, to keep their social status, they were tolerated if conducted out of the public eye. Additionally, there were cases of elopements and divorce in which the lady was still accepted in Society. In Lady Derby’s situation, it seems she misplaced her trust not only in choosing a husband, but in selecting a lover who appears did not press the case of desiring to wed her. She quickly fell like a star from the heavens, illustrating how hypocritical and fickle high society could be.
Discover more from Rose Fairbanks
Subscribe to get the latest posts sent to your email.

How interesting! I had no idea. What a sad life for this whole family really. And where are all the bedrooms for guests? This seems so different than all I have read in the stories.
LikeLike
The other night I was thinking about Lady Derby again. One account I read said that her second daughter could be fathered by the Duke of Dorset but other accounts dismissed that. Not to be too graphic, but if she were already pregnant when the affair started, might this have been bad pregnancy hormones running amuck? I’d be curious to know more about her husband during that time, if he was traveling or what. Elizabeth Farren had made her stage debut in 1777, it’s possible he was already enamored with her.
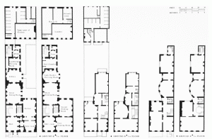
The other storeys weren’t included in the image but this is what the Survey of London says about Derby House:
They don’t have plans of what it looked like when first built, so they are unsure how large Adams’ renovation was. I would think given the excitement reported about it in a paper following a ball, that it was larger than just the back closet as this account fears. Additionally, the first description lists a bedchamber on the first floor and instead we see a dressing room- which were actually used to privately entertain close family and friends in, not actually for dressing- hence the closet, previously called cabinets (hence Lady Catherine suggesting shelves in them). I think it’s possible in addition to extending the size of the house at the rear, that they re-ordered the primary rooms. The ante-rooms in this floor plan may have actually been used as rooms. I think it’s worth noting that the future Lord Derby renovated this house while courting his wife and it seems like he may have given up an actual bedchamber. For her to have an affair and then choose to leave him (it’s unclear if she believed he would grant a divorce) may say something even sadder about their marriage, which while a good match as to fortune and rank seems to have been a passionate love match.
As for guests, there were some much larger houses but even on Grosvenor Square most of them did not house many guests. I think they were more about entertaining others with houses than hosting people like one did with country house parties. Darcy likely needed to fear the Bennets invading Pemberley more than having to house all of them in London, but it’s possible his had an extra floor. Lord Derby’s remodel was one of the earlier ones and still 40 years before P&P is generally set, many houses saw yet another remodel during that time and many added a storey for guests. But the original houses built in the 1720s were really not near as large as we tend to think. In general, as an American it can be a surprise when internationally traveling and I’m reminded how close together the rest of the world lives, as well. I haven’t seen a floor plan with room dimensions. Somewhere I’ve seen averages for the total area. I will post that if I come across it again. In my story which sparked this research quest, I leave the original 1720s footprint of the house and state it had not been remodeled extensively and was one of the smaller originals of the Mayfair district (I don’t list which street precisely). The Hursts could house both Caroline and Bingley so I explain that one is quite large. After all, Caroline never fawns over Darcy’s London house, just over Pemberley. :)
LikeLike